Uppdrag
Om- och tillbyggnation av befintligt kontorshus
Omfattning
Arkitektur, 3d-visualisering
Typ av fastighet
Kontorsbyggnad
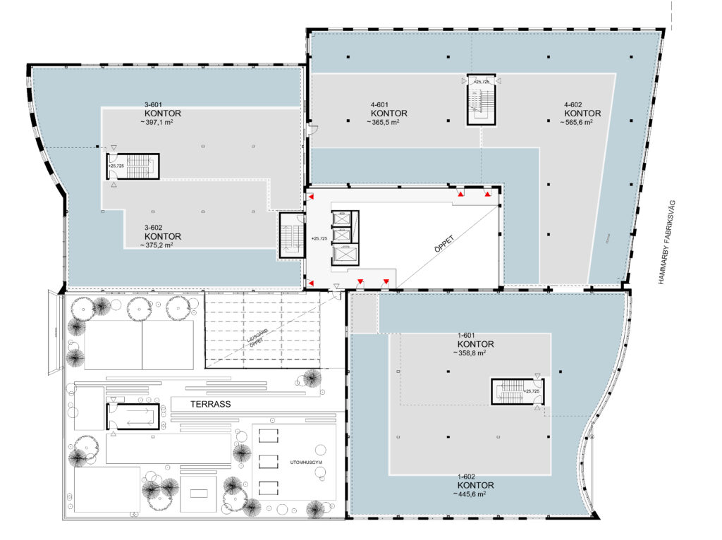
Till projektet har vi tagit fram ett koncept för om- och tillbyggnad av en befintlig kontorsfastighet i Hammarby Sjöstad, ursprungligen ritad av Axelsson & Borowski.
Förslaget omfattar modernisering av fasader med glaspartier i plåt, nya atrier för ökat dagsljus samt en sexvåningsbyggnad som harmonierar med de befintliga strukturerna och skapar flexibla kontorsytor.
Nya glaspartier i plåt, tillsammans med de nya atrierna, maximerar dagsljuset och bidrar till en ljus och inspirerande arbetsmiljö.


Den arkitektoniska visionen för projektet präglas av hållbarhet och högkvalitativa materialval, i linje med Axelsson & Borowskis stil mellan postmodernism och high-tech.
Med lekfull modulering och färgsättning förstärker byggnaden sin unika karaktär och bidrar till Hammarby Sjöstads mångfacetterade arkitektoniska landskap.
Planlösningen har utvecklats för optimal tillgänglighet, med centralt placerade hissgrupper och sammanhängande loftgångar. En ny grönskande takterrass adderar ytterligare värde och ger hyresgästerna en trivsam utemiljö för rekreation och inspiration.

